1 、烧结余热利用意义
烧结工序中有50%左右的热能被烧结烟气和冷却机热风带走,烧结矿冷却过程中排出的热量约占烧结能耗的28%,回收利用好这部分余热对实现钢铁企业节能降耗具有重要意义。烧结过程生产的余热主要集中在烧结烟道废气与环冷机热风,烧结废气由于脱硫工艺要求不便利用,因此利用好冷却机热风是一个重要课题。
2 、烧结余热利用方式
目前国内环冷机热风余热利用主要有以下几种方式:①热风烧结。将环冷机热风引到烧结机头,以降低能耗,改善烧结矿性能,一般热风温度在200~300℃。②蒸汽预热烧结料。利用低压蒸汽预热烧结料,提高料温,降低烧结能耗,同时改善料层透气性,提高烧结矿质量。所用蒸汽压力一般为~0.4MPa。③余热发电。将中低温烟气通过余热锅炉产生蒸汽,然后推动汽轮发电机组发电。此种利用方式技术已经成熟,经济效益较好。④其他。比如热烟气用于解冻原料库,锅炉产汽供生活用汽、浴室和食堂等等。
如果将前三种利用方式通过一个系统来实现,就能实现环冷机热风最大效率的利用。

3、余热综合利用系统
3.1、热源及需求
某钢铁厂300m2烧结机及环冷鼓风机参数如表1所示。

落到环冷机上的烧结矿温度约为600~750℃,根据热力学分析,得到可利用的热风参数为:450000Nm3/h,380℃。
按照工艺要求,用于热风烧结的风量为15万Nm3/h、250℃;烧结生产所用预热蒸汽及其它用蒸汽为21t/h,压力0.4MPa。
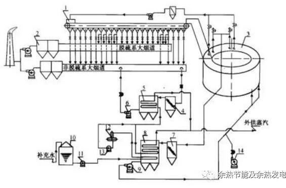
3.2、工艺流程
根据热源情况以及需求,设计了一套由双重供热余热锅炉和抽汽补汽凝汽式汽轮发电机组成的余热发电利用系统。双重供热余热锅炉既可产生蒸汽又可提供热风烧结所需的热风,抽汽补汽凝汽式汽轮机提供烧结生产用蒸汽。余热锅炉烟气“一进两出”,立式布置,其额定参数:过热蒸汽40t/h、330℃、1.7MPa。汽轮机进汽参数:40t/h、330℃、1.6MPa,抽气21t/h,补汽10t/h,额定功率5300kW。锅炉余热利用效率达到73.8%,工艺流程如图1所示。

环冷机运行过程中产生的热风经烟管系统进入余热锅炉,产生40t/h、330℃、1.7MPa的过热蒸汽;同时利用引风机从余热锅炉相应温度段抽取250℃热风供热风烧结;剩余热风继续利用,产生低温热水,以降低锅炉排烟温度,最大限度地利用烟气余热。
